QQ登录

只需一步,快速开始

微信登录,快人一步

扫码登录更安全

登录 | 注册帐号 | 找回密码

茂名论坛

  • 关注抖音号
  • 关注公众号
  • 下载APP
  • 扫码关注抖音号
  • 扫码关注公众号
  • 扫码关注APP
快捷导航
查看: 18607|回复: 148

[民生百态] 为了这房子的事情,跟未婚夫吵得不想结婚了,求大神破解

[复制链接]
发表于 2018-8-28 11:59 | 显示全部楼层 |阅读模式
本帖最后由 红尘如梦 于 2018-8-28 12:00 编辑

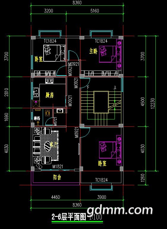
每个人结婚前都是希望有个归宿吧?你说你不够钱在市区买一套房子,觉得很亏,住旧房就好,又说父母想要在老家建房子,非得要回去建,你回去建,我也可以理解。但是很难接受咯。整一家人都在市区住,几乎除了节气都不回老家,却要在家建6层楼,因为长期不在家里,家里的地都没有了,还剩下100平方,跟着大佬一起建,真的想问问你有几何回老家住啊?!!


而我最无解的是!!!!这个设计图,你说要我给意见,我就一个要求,主人房要有卫生间。你们居然觉得因为只有100平方,没必要在主人房建多一个卫生间!!!那你要我给什么意见啊?!!!真的是气死了。现在还有谁家的房子主人房没有卫生间啊?以为是10年前吗?矛盾上升,这婚都不想结了~求大神破解,怎样才能说服他,重新改改这设计啊?

微信图片_20180828111743.jpg

微信图片_20180828111733.png



微信图片_20180828111756.png



发表于 2018-8-28 12:09 | 显示全部楼层
你和他说听我的!!!
发表于 2018-8-28 12:13 | 显示全部楼层
跟他分了,这些问题都不是问题了,因为完全与你无关了
发表于 2018-8-28 12:13 | 显示全部楼层
哎呀,回农村建100平方的房屋?100平方在农村是非常小的了,又不经常住,估计是建来给父母住的,你这次要有心理准备了,很大可能得裸婚,
发表于 2018-8-28 12:14 | 显示全部楼层
一人住一层,没主卫也没所谓
发表于 2018-8-28 12:18 | 显示全部楼层
回农村盖房是面子问题,在市区买房是刚需问题。
发表于 2018-8-28 12:18 | 显示全部楼层
未婚夫?未过门你不应该干涉太多吧?不过回乡下建可以,如果乡下离市区不远的话可以接受。长期在市区住绝对在市区买房比较好
发表于 2018-8-28 12:19 | 显示全部楼层
100平方 房间再弄一个厕所 地方浪费好大
发表于 2018-8-28 12:20 | 显示全部楼层
你男朋友真心不会想,六层楼下来装修好,80-100万。如果要回家建也是建三层,父母一层,两兄弟各一层,剩下借点首付在市区买一套。
发表于 2018-8-28 12:21 | 显示全部楼层
我家刚建,主人房没卫生间
发表于 2018-8-28 12:21 | 显示全部楼层
在外买房为生活,回家建房为面子。
发表于 2018-8-28 12:23 | 显示全部楼层
一百平,在农村确实不用搞主人房卫生间,而且,一层就你们两夫妻住,有一间够用了吧?
发表于 2018-8-28 12:25 | 显示全部楼层
这设计看不懂,100方还有三房一厅,一个厨房,一个卫生间。我家90多方,没厨房的两房一厅我都嫌小了。
发表于 2018-8-28 12:25 | 显示全部楼层
第一你未过门,无权过问,征求你的意见只是尊重你。第二建楼是家族的事,大哥父母都想在老家建房子,又不是你未婚夫一个人可以作主。第三主人房有没有卫生间不要太执着吧?因为一百平在农村确实非常小
 楼主| 发表于 2018-8-28 12:28 | 显示全部楼层
文宇008 发表于 2018-8-28 12:13
跟他分了,这些问题都不是问题了,因为完全与你无关了

啊,扎心了,一语中的,这就是问题所在啊,感觉完全没有把我考虑进去
您需要登录后才可以回帖 登录 | 注册帐号

本版积分规则

友情链接:
返回顶部
返回列表 快速回复