QQ登录

只需一步,快速开始

微信登录,快人一步

扫码登录更安全

登录 | 注册帐号 | 找回密码

茂名论坛

  • 关注抖音号
  • 关注公众号
  • 下载APP
  • 扫码关注抖音号
  • 扫码关注公众号
  • 扫码关注APP
快捷导航
楼主: Fachau

[深读茂名] 阳光正好,共庆华诞!2021.10月化州城建分享贴。

[复制链接]
 楼主| 发表于 2021-10-25 15:48 | 显示全部楼层 |来自:茂名在线苹果版茂名在线APP
向阳路下穿设计图
front1_0_3275880_FjfhMWtTVjH0oJG3bkLqSu2BEsVx.1635147706_15_47_53.jpg
 楼主| 发表于 2021-10-25 16:38 | 显示全部楼层 |来自:茂名在线苹果版茂名在线APP
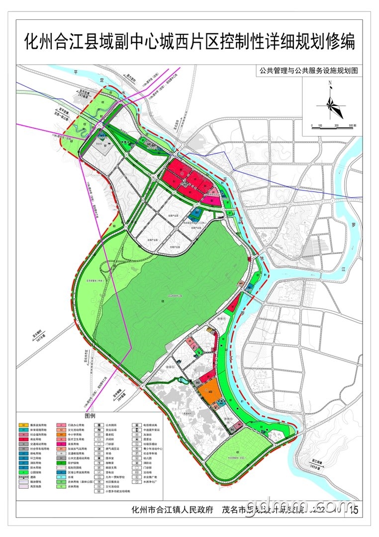
《化州合江县域副中心城西片区控制性详细规划修编》批后公告

公共管理与公共服务设施规划图


front1_0_3275880_FrICEUvGoyv43PHKFa2Uvk2zcBww.1635147706_16_38_27.jpg
 楼主| 发表于 2021-10-25 16:39 | 显示全部楼层 |来自:茂名在线苹果版茂名在线APP
《化州合江县域副中心城西片区控制性详细规划修编》批后公告

道路综合交通规划图

front1_0_3275880_FoYIjF0q4FGzu11_Chai9WSCR_bh.1635147706_16_39_26.jpg
 楼主| 发表于 2021-10-25 16:40 | 显示全部楼层 |来自:茂名在线苹果版茂名在线APP
《化州合江县域副中心城西片区控制性详细规划修编》批后公告

功能结构规划图


front1_0_3275880_Fk3Jq58Okinr_6HWxzTnpfzHlUvT.1635147706_16_40_32.jpg
 楼主| 发表于 2021-10-25 16:41 | 显示全部楼层 |来自:茂名在线苹果版茂名在线APP
《化州合江县域副中心城西片区控制性详细规划修编》批后公告

修编后土地利用规划图

front1_0_3275880_Fups2ocz4_6BEAHGofVQIeBGgAyG.1635147706_16_41_19.jpg
 楼主| 发表于 2021-10-25 19:11 | 显示全部楼层 |来自:茂名在线苹果版茂名在线APP
合江西片区主要规划了丝绸产业园
front1_0_3275880_FhjdNcB6kem5sYMLcq7g-fGacJ96.1635160116_19_08_38.jpg
 楼主| 发表于 2021-10-25 19:13 | 显示全部楼层 |来自:茂名在线苹果版茂名在线APP
合江城西片区道路规划
front1_0_3275880_Fgp4gXhQSW7saQwi9wcV_p3cQLOi.1635160116_19_13_39.jpg
 楼主| 发表于 2021-10-25 19:14 | 显示全部楼层 |来自:茂名在线苹果版茂名在线APP
合江城西片区道路规划横断面图
front1_0_3275880_FvizWkTJDY8zgcm2dx-lzQrLyee5.1635160116_19_14_55.jpg
 楼主| 发表于 2021-10-25 19:22 | 显示全部楼层 |来自:茂名在线苹果版茂名在线APP
玉茂一级公路合江镇区段规划红线宽度40米,两侧11米宽行车道。双向六车道规模,望全线预留扩建六车道规模征地,各镇过境段按六车道规模建设。
front1_0_3275880_FsHJAImgXmqnN1YbbDQb3NPf05Mu.1635160116_19_18_24.jpg
 楼主| 发表于 2021-10-25 19:24 | 显示全部楼层 |来自:茂名在线苹果版茂名在线APP
化北高速选线在合江镇上跨玉茂一级公路后在南侧设置合江出入口。
front1_0_3275880_Fk87zHCvFfr-qv_vQX1eYaFy1tg7.1635160116_19_24_46.jpg
 楼主| 发表于 2021-10-25 19:35 | 显示全部楼层 |来自:茂名在线苹果版茂名在线APP
鉴江鱼 发表于 2021-10-25 15:45
不错,我化开始有细节了

确实要适时抠一下细节。
 楼主| 发表于 2021-10-25 19:41 | 显示全部楼层 |来自:茂名在线苹果版茂名在线APP
绿景佐伶悦湖风情街
front1_0_3275880_Fp0OpEF9pTdBbpT82tW1UEStDWk3.1635162018_19_40_19.jpg
 楼主| 发表于 2021-10-25 19:41 | 显示全部楼层 |来自:茂名在线苹果版茂名在线APP
绿景佐伶化州第五个商业项目,
佐伶悦湖风情街已经启动招商了!
 楼主| 发表于 2021-10-25 20:25 | 显示全部楼层 |来自:茂名在线苹果版茂名在线APP
宏达广场外立面亮化工程
front1_0_3275880_FnXm8_Rl4B3X-oNXr1L64MqCbtYY.1635162018_20_25_08.jpg
 楼主| 发表于 2021-10-25 20:25 | 显示全部楼层 |来自:茂名在线苹果版茂名在线APP
宏达广场外立面亮化工程
已基本完工开始亮灯。
您需要登录后才可以回帖 登录 | 注册帐号

本版积分规则

友情链接:
返回顶部
返回列表 快速回复