QQ登录

只需一步,快速开始

微信登录,快人一步

扫码登录更安全

登录 | 注册帐号 | 找回密码

茂名论坛

  • 关注抖音号
  • 关注公众号
  • 下载APP
  • 扫码关注抖音号
  • 扫码关注公众号
  • 扫码关注APP
快捷导航
楼主: 罗州郡

[今日关注] 渐入佳境,化州11月城乡建设美景欣赏

[复制链接]
 楼主| 发表于 2025-11-18 17:43 | 显示全部楼层
罗州郡 发表于 2025-11-18 17:18
文光塔这边美呆了

鉴江沿岸,露营爱好者的最爱
 楼主| 发表于 2025-11-18 17:49 | 显示全部楼层 |来自:茂名在线苹果版茂名在线APP
橘城南路


 楼主| 发表于 2025-11-18 20:56 | 显示全部楼层 |来自:茂名在线苹果版茂名在线APP
茂名召开会议专题研究临空经济区规划建设工作:加力招商引资,提速项目建设,打造茂名“联动大区域”的空港支点

11月17日上午,茂名市委书记、市人大常委会主任庄悦群主持召开会议,深入学习贯彻党的二十届四中全会精神和习近平总书记视察广东重要讲话重要指示精神,贯彻落实省委书记黄坤明调研茂名指示要求,专题听取临空经济区规划建设进展情况汇报,研究部署下一步工作。

会议指出
建设临空经济区是省委和黄坤明书记交给茂名及化州的重大任务,也是茂名“十五五”时期建设枢纽型城市的战略需要。化州和茂名市直各部门要提高政治站位,深刻把握省委的厚望期许和战略部署,坚决扛起使命担当,以更大决心、更大力度推动临空经济区建设成为茂名“联动大区域”的空港支点。
要立足“科学管用”,把准园区功能定位,明确园区核心功能和发展方向,高起点高标准高水平优化规划设计;细化空间布局,明确功能分区、产业布局、基础设施和生活服务配套;精准衔接国土空间规划,科学拓展园区规模,为未来发展留足空间。
要立足“时不我待”,以抢的劲头提速基础设施建设,确保园区“三横两纵”主干路网如期建成,最快速度补上园区配套基础设施短板;以现代化园区理念抓好周边服务配套,推动“航空小镇、产业园区、杨梅镇墟”联动发展,因地制宜谋划布局生活性、生产性服务业,促进临空经济区“人产城”融合发展;更好统筹当前和长远,结合“十五五”规划编制提前谋划项目,持续做优交通路网、配套设施、绿化美化,全面提升园区综合实力。
要立足“精准高效”,聚焦智能制造、生物医药与食品加工、现代物流与航空服务三大主导产业,招引、落地一批链主企业和标志性项目,推动园区产业链式集聚、集群发展;聚焦土地和资金两项要素,加快土地盘整收储,统筹用好各类资金渠道和金融服务,不断强化保障力度;聚焦机制创新和服务效率,切实增强服务企业意识,健全全流程跟踪服务机制,努力实现“园区事园区办”,全力推动产业项目招引和落地见效。
要立足“实干善干”,坚持全市“一盘棋”推进,推动形成齐抓共管、合力推进工作格局;强化区域协同,主动加强与吴川等地对接合作,共同提升区域发展能级;强化作风建设,巩固拓展深入贯彻中央八项规定精神学习教育成果,以干部过硬作风推动临空经济区建设尽快取得更多标志性成果。
茂名市领导王长青、王小慧参加会议。
 楼主| 发表于 2025-11-18 22:01 | 显示全部楼层 |来自:茂名在线苹果版茂名在线APP
机场大道杨梅段南往北方向也有部分画线了
20251118220133front1_0_3381721_FgX-nl-t-8fqUMzmOA50Whc98NQu.jpg
20251118220133front1_0_3381721_FkM12K5ChaoPs5RRwjAesmrK8Jw9.jpg
 楼主| 发表于 2025-11-18 22:03 | 显示全部楼层 |来自:茂名在线苹果版茂名在线APP
杨良大道一期
20251118220324front1_0_3381721_Fuczgpg-UavuFh3N_6jrSl_B1RAq.jpg
20251118220324front1_0_3381721_FrB0zKlfH8kao7vue_CXTg8r4h-u.jpg
 楼主| 发表于 2025-11-18 22:26 | 显示全部楼层 |来自:茂名在线苹果版茂名在线APP
补个温德姆酒店后面的视频


罗州郡 发表于 2025-11-18 17:03
有了空港酒店通向农业公园这条小路,以后杨梅的老百姓可以从梅江里散步到蝴蝶谷

这截路最好是能铺上混凝土,再做沥青路面才好看。
 楼主| 发表于 2025-11-18 23:08 | 显示全部楼层 |来自:茂名在线苹果版茂名在线APP
机场大道职业学校段最近在搞下水道
20251118230802front1_0_3381721_FiNdTZqENFNqikKXHdA7iLSDpf2t.jpg
 楼主| 发表于 2025-11-18 23:09 | 显示全部楼层 |来自:茂名在线苹果版茂名在线APP
粤西情怀 发表于 2025-11-18 22:46
这截路最好是能铺上混凝土,再做沥青路面才好看。

不清楚具体怎么搞
 楼主| 发表于 2025-11-18 23:18 | 显示全部楼层 |来自:茂名在线苹果版茂名在线APP
罗州大道一期施工招标开标
20251118231804front1_0_3381721_Fj_QUV0R7SIVjAsQCuYgi2H-awnR.jpg
 楼主| 发表于 2025-11-18 23:31 | 显示全部楼层 |来自:茂名在线苹果版茂名在线APP
化州牛杂入选全运会菜单
20251118233150front1_0_3381721_FqT6kXSUN1Wc2KuhoPaA6wPk8ZEi.jpg
罗州郡 发表于 2025-11-18 16:04
机场大道职业学校那段修补做什么的

古坑安置房做排污吧,不是很清楚
 楼主| 发表于 2025-11-19 08:32 | 显示全部楼层
小钟AA 发表于 2025-11-18 23:38
古坑安置房做排污吧,不是很清楚

赶快将机场大道下郭段黑底化吧
 楼主| 发表于 2025-11-19 08:36 | 显示全部楼层 |来自:茂名在线苹果版茂名在线APP
奥体文化商务中心


 楼主| 发表于 2025-11-19 08:52 | 显示全部楼层

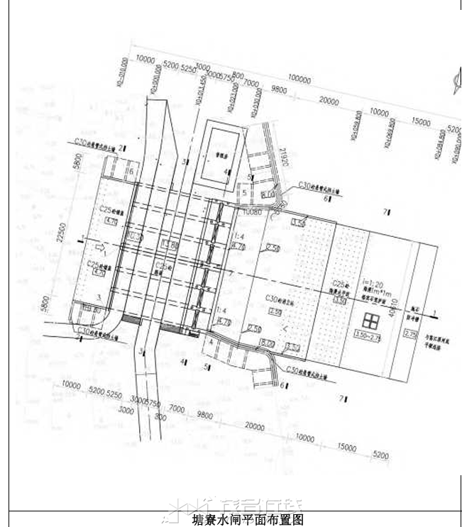
塘寮水闸是鉴江干流治理工程中最大的水闸,闸过水宽度22.5米,两边各有5.8米的外扩空间,总宽度达到34.1米,共6孔;闸条长21米,闸的护坡底部长20米。
塘了.png
您需要登录后才可以回帖 登录 | 注册帐号

本版积分规则

友情链接:
返回顶部
返回列表 快速回复