QQ登录

只需一步,快速开始

微信登录,快人一步

扫码登录更安全

登录 | 注册帐号 | 找回密码

茂名论坛

  • 关注抖音号
  • 关注公众号
  • 下载APP
  • 扫码关注抖音号
  • 扫码关注公众号
  • 扫码关注APP
快捷导航
查看: 5389|回复: 41

[今日关注] 2025年1~10月粤西县域商品房成交量

[复制链接]
发表于 2025-10-31 09:19 | 显示全部楼层 |阅读模式
粤西房产10.jpg
 楼主| 发表于 2025-10-31 09:25 | 显示全部楼层
每年的10月,是商品房成交的黄金月份,各县成交量对比9月都有大幅度的上涨。其中,信宜成交面积最多,成交面积前五依次是信宜、高州、阳春、化州、阳西。
其实应该加上茂南
gzhhlg 发表于 2025-10-31 15:48
其实应该加上茂南

这里又没有区,连电白也没有
为什么化州的房价底过信宜的呢
第三季度负增长7亿,现在流行报喜不报忧
 楼主| 发表于 2025-11-1 11:13 | 显示全部楼层 |来自:茂名在线安卓版茂名在线APP
83674366 发表于 2025-11-1 02:56
为什么化州的房价底过信宜的呢

信宜今年有不少商铺成交。
 楼主| 发表于 2025-11-1 11:25 | 显示全部楼层 |来自:茂名在线安卓版茂名在线APP
高凉骑士 发表于 2025-11-1 09:21
第三季度负增长7亿,现在流行报喜不报忧

高州前三季度土拍收入超13亿元,湛仔明年还得继续酸。
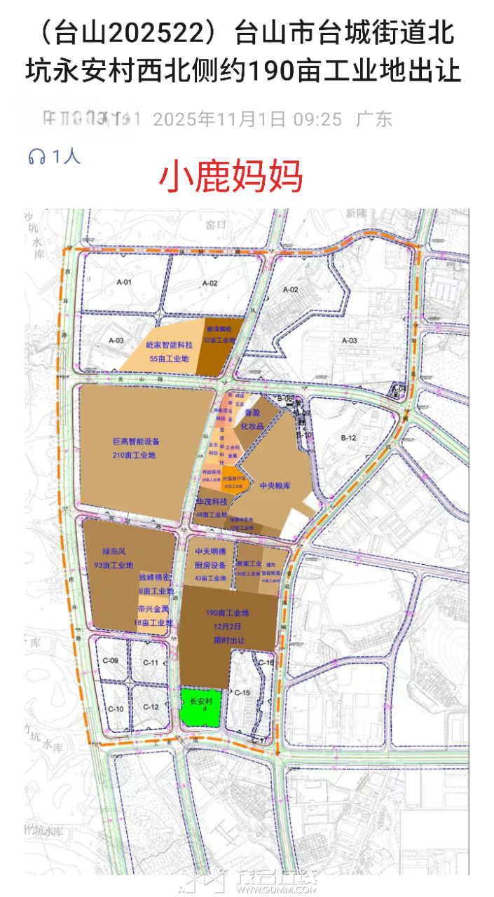
@阿富他爸 大哥这几天连续出让工业用地
20251101123327front2_0_3366297_FooQMK30Z1hFwWlTGJdZIQbKlJ8e.png
20251101123327front2_0_3366297_FjIamtagitDRJPsgGYNtoF4GqzM2.png
20251101123326front2_0_3366297_Fjotf1l-VY1H7Bj_tAqvmU5uylVi.png
20251101123451front2_0_3366297_FmILTul3Esevo05QpfJIgLJVidBf.png
20251101123327front2_0_3366297_FmR1Mkh3K1lx1_BInJowVEuWOP42.png
@北美难民,你以为就台山有?
20251101134804front2_0_3283728_Fn-ft9T50ArRHHYxhNTn00PKggkN.jpg
北美难民 发表于 2025-11-1 12:36
@阿富他爸 大哥这几天连续出让工业用地

月底还有两块,一个定位是渔业机械制造,另一定位是金属制品,是什么企业拭目以待。
20251101140127front2_0_3385727_FpbzCHKFiyoFpSL8ouwfqZcE6qy4.jpg
20251101140127front2_0_3385727_FpXfn0bn0rs__xxOgl9uwSy5yIOI.jpg
20251101140127front2_0_3385727_FlPipfeMRapCDKbuZcVoGH0dRz1-.jpg

20251101140127front2_0_3385727_FpXfn0bn0rs__xxOgl9uwSy5yIOI.jpg
大炮恩最会吹牛,随便找个对话就投资30亿,吹牛不用交税!今年前三季度,大炮恩工业增加值,用电量都负增长了,继续搞工业地产只有死路一条!@阿富他爸
20251101170551front2_0_3385727_FnTLPFZkf-hCkvyhhFDu9E7z4nSM.png
20251101170551front2_0_3385727_FrHFElBRTFCirIzKnpe8yJguftP-.png
 楼主| 发表于 2025-11-1 18:16 | 显示全部楼层 |来自:茂名在线安卓版茂名在线APP

大冤种
20251101181339front2_0_3277772_FvMYGGui4GgbKnt23dgI1oqwR2dJ.jpg
20251101181528front2_0_3277772_Fjzqdkupm4W2Omr4NbD51KlgsY2Z.jpg
 楼主| 发表于 2025-11-1 18:25 | 显示全部楼层 |来自:茂名在线安卓版茂名在线APP

网友道出了实话
20251101182315front2_0_3277772_Fhk_fHAQR8VxYyLhPcl56qDc_WOQ.jpg
您需要登录后才可以回帖 登录 | 注册帐号

本版积分规则

友情链接:
返回顶部
返回列表 快速回复