QQ登录

只需一步,快速开始

微信登录,快人一步

扫码登录更安全

登录 | 注册帐号 | 找回密码

茂名论坛

  • 关注抖音号
  • 关注公众号
  • 下载APP
  • 扫码关注抖音号
  • 扫码关注公众号
  • 扫码关注APP
快捷导航
楼主: Fachau

[今日关注] 化启新春,州跃龙门。化州26年3月城建分享交流贴

[复制链接]
石湾110千伏变电站
20260327170122front1_0_3275880_Fq_p152fpa2YtGAmpHkw0D4XFrVX.jpg
Fazau化州 发表于 2026-3-27 16:56
石湾110千伏变电站

这个应该是廉江核电输电线路的配套工程吧?
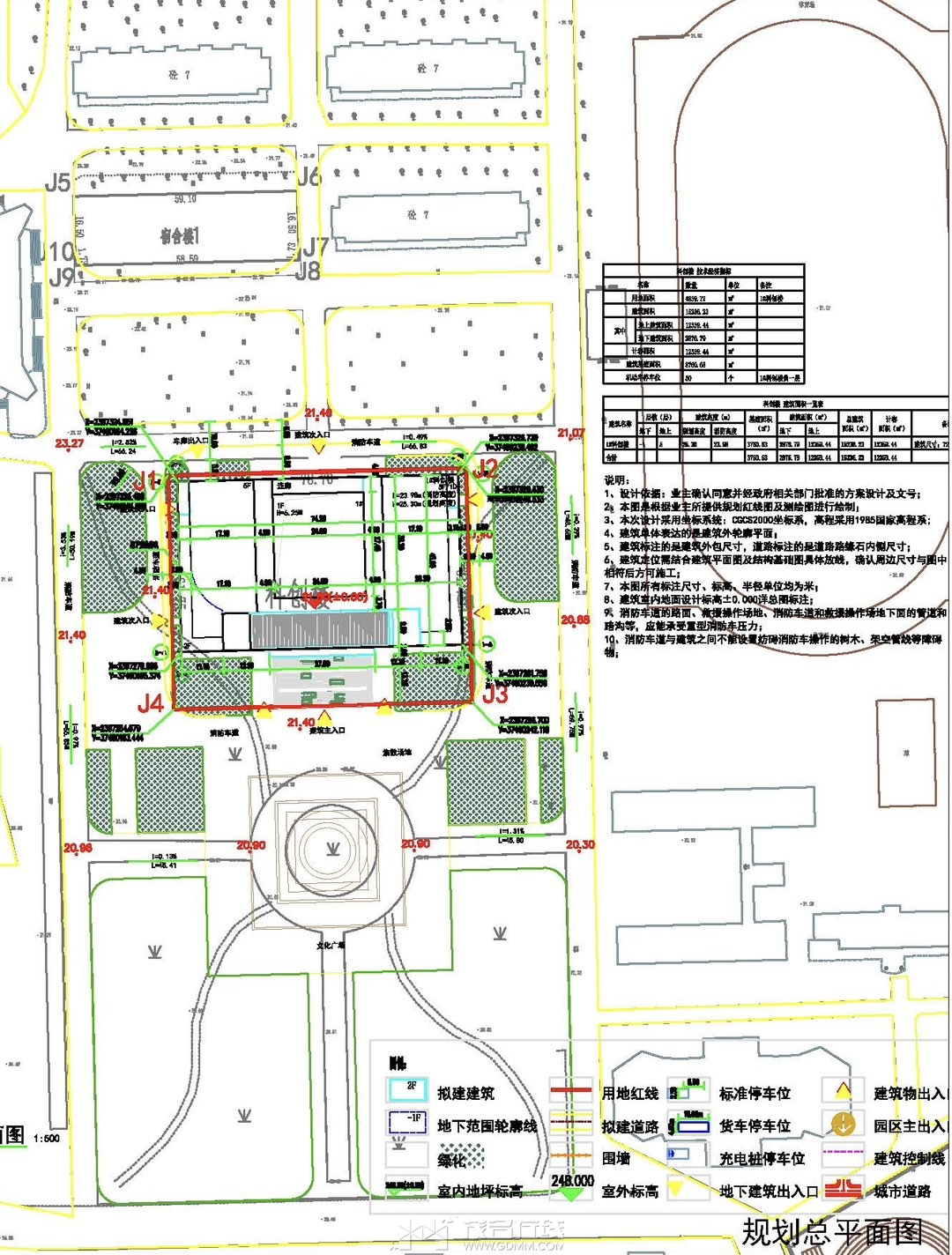
化州一中新图书馆+科创中心,建筑面积约1.5万平方米
20260327183605front1_0_3341987_FnSXR6yXT4j6ZhhilI0V22PW8gYK.jpg
20260327183605front1_0_3341987_Fi87j63bm7cpB-CXVZY74wYF3K7k.jpg
20260327183605front1_0_3341987_Fs-Fvp9uGCQF8fCtrxZUI6vQ4pS7.jpg
20260327183605front1_0_3341987_FsPwNSdw2odJDkCUuPReNxr_RulR.jpg
20260327183605front1_0_3341987_FggSlS7yzskPfvDs5N7kJ85cqTLT.jpg
20260327183605front1_0_3341987_Fi-umM8dkI2UG7UWkgm4ZttKKzZf.jpg
20260327183605front1_0_3341987_FuPJwOpmbYr5uRUb_EqKlGV4JstI.jpg
20260327183605front1_0_3341987_Fg3qnfL9bnHJN02xkqZViSVV1Vk3.jpg
20260327183605front1_0_3341987_FmU6xDDUU6io2Z8vKmewKAEkXJw0.jpg


原批复设计
20260327183646front1_0_3341987_FhLSM14k3UqjU3hCIJx45pDkaBwz.jpg
20260327183646front1_0_3341987_FpaptPupn5vPvjccyn_lTdr2Uq5l.jpg
20260327183646front1_0_3341987_Fh5I5yXe9DADsrjkpb9XtLAolq_p.jpg
20260327183654front1_0_3341987_Fr6lUmNryCDQE-fhBkvQc0Q1x9ab.jpg
Aillllle 发表于 2026-3-27 18:36
化州一中新图书馆+科创中心,建筑面积约1.5万平方米

点赞小哥!!!
Aillllle 发表于 2026-3-27 18:36
化州一中新图书馆+科创中心,建筑面积约1.5万平方米

拍一下另两栋楼的效果图
如风而过 发表于 2026-3-27 18:11
这个应该是廉江核电输电线路的配套工程吧?

应该是的。
Aillllle 发表于 2026-3-27 18:36
化州一中新图书馆+科创中心,建筑面积约1.5万平方米

支持方案八。
发表于 2026-3-28 07:57 | 显示全部楼层
如风而过 发表于 2026-3-27 18:11
这个应该是廉江核电输电线路的配套工程吧?

廉江核电是500kV线路!
576205290 发表于 2026-3-28 07:57
廉江核电是500kV线路!

变电站……有没有可能是支线?
上周拍的207改线
20260328093204front2_0_1590349_Fh2z6NL_kBR0Lj23A6W_ykroxUsW.jpg
20260328093204front2_0_1590349_FrlTHovFOYy_nE3AvLgF7PmzUaF_.jpg
20260328093204front2_0_1590349_Fs_q4E1c89ZZQkueSnxfCzOoMKN5.jpg

20260328093204front2_0_1590349_Fh2z6NL_kBR0Lj23A6W_ykroxUsW.jpg
上周拍的207改线,石湾段路基基本全线贯通
20260328093235front2_0_1590349_FlZeP4qwmkO47XMU7ggZ7RowGneU.jpg
20260328093236front2_0_1590349_Fv4d5at0j5RTZUeZAbXL0bgNt1Su.jpg
20260328093235front2_0_1590349_Fm1cIUcbMIx2INsy7TyNDSwO82Bk.jpg
20260328093235front2_0_1590349_FiA_yIvHqMoCNwuyQWIi-bDe3tGH.jpg
20260328093235front2_0_1590349_Fn6Z1pXjkPfNerI25q-zVa5Y0gMV.jpg
207改线工程
20260328093325front2_0_1590349_Fui-8lSO5ANA7gejO6gK3fYxAupo.jpg
20260328093325front2_0_1590349_FjetTjpJQQS_7oQEkY6WA_xOhut1.jpg
20260328093325front2_0_1590349_Fsaft_RvSQ789krnOG8o_z611fsg.jpg
20260328093325front2_0_1590349_Fs7mXiHc5XO16HEzb1xLOt68u39l.jpg
207改线工程。从橘乡大道往良光方向,基本上全线路基已贯通,今年内应该路基整体可以平整。作为省重点建设项目,资金有保障,进度还是相当可靠的。
20260328093401front2_0_1590349_FpDQmR8a1bbY4ykDJoeqfB0o1Urm.jpg
20260328093401front2_0_1590349_FmDJPKBwHomTzmTtm3Sps9ZXkDxn.jpg
20260328093401front2_0_1590349_FguHp-2vhzBc_8rDictN3nlar-UJ.jpg
20260328093401front2_0_1590349_FjV_y1myDN3eeOoCBuFCGwEuKSQr.jpg
橘乡大道最新进展。路基平整已经七七八八,节奏不紧不慢;按照现场工程师的说法,进度取决于甲方的资金拨付,资金拨付快进度就快,拨付慢就慢慢干……
20260328093642front2_0_1590349_FpBLT0e6TBYC9MzmiHV723FvJRb8.jpg
20260328093642front2_0_1590349_FhzjFSK0IUJ4yzPpeNd11XORWUD0.jpg
20260328093642front2_0_1590349_FtTWLLEmCCAzXuPT5sv7OkilRz-R.jpg
您需要登录后才可以回帖 登录 | 注册帐号

本版积分规则

友情链接:
返回顶部
返回列表 快速回复