QQ登录

只需一步,快速开始

微信登录,快人一步

扫码登录更安全

登录 | 注册帐号 | 找回密码

茂名论坛

  • 关注抖音号
  • 关注公众号
  • 下载APP
  • 扫码关注抖音号
  • 扫码关注公众号
  • 扫码关注APP
快捷导航
查看: 127|回复: 0

[民生百态] 茂东这条人行天桥设计如何?人行天桥宽度3.5米,底部净空6米,可上电动车

[复制链接]
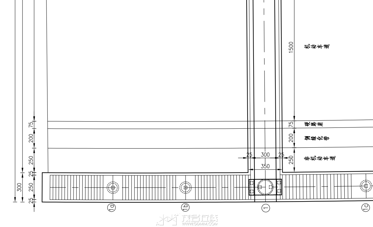
石曹村与坑仔塘村的人行天桥,结构为现浇箱梁,人行天桥宽度3.5m,长度48.5m,主要服务茂东快线两侧行人过街,避免横穿茂东快线改建段主线存在的危
险性。
人行天桥底部净空6米,可上电动车
20260331213014front2_0_3299883_FlqyNv66KRVvo-FfsGriep0BSQvq.jpg
20260331213014front2_0_3299883_FsWFZ7Abt_oO_JZvs9lg1EuWL7wx.png
20260331213014front2_0_3299883_FqxA3TroJKxC-PbeGFh6QnQCHjX8.png
20260331213014front2_0_3299883_FkDGaT3jgzXBkNP2dtN8Mvf4f0wb.png
20260331213014front2_0_3299883_Fs5_-msFg2zkWiSPjUnMd7LqBJWi.png
20260331213014front2_0_3299883_FkDJEwzMguBf3Z6t4FE6sGdVRW12.png
20260331213014front2_0_3299883_FtVibR6o1fDROpdX32vUlBrU8LLL.png
20260331213014front2_0_3299883_Fv3WXDqueDqTjQDMvEa3Eoyt2e8n.png
您需要登录后才可以回帖 登录 | 注册帐号

本版积分规则

友情链接:
返回顶部
返回列表 快速回复