QQ登录

只需一步,快速开始

微信登录,快人一步

扫码登录更安全

登录 | 注册帐号 | 找回密码

茂名论坛

  • 关注抖音号
  • 关注公众号
  • 下载APP
  • 扫码关注抖音号
  • 扫码关注公众号
  • 扫码关注APP
快捷导航
楼主: 如风而过

[今日关注] 又是金秋十月,化州城建能否掀热潮?

  [复制链接]
发表于 2021-10-25 15:37 | 显示全部楼层
摸摸OK吃过 发表于 2021-10-22 12:25
要迁出户口才能读书大大打击农村人入城的积极性。迁出户口,意味着不再是村经济合作社的社员,可能会丧失 ...

请问绿景的初中是哪的?
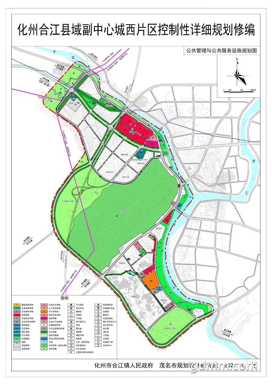
合江镇县域副中心规划图出来了,北化高速和玉茂一级从镇中心交汇穿过,看规划玉茂一级规划了双向六车道
front2_0_3280271_FlMuwlrvfRMbX2kZvtCeBu55M8jA.1635148710_15_58_31.jpg
front2_0_3280271_FrottZNL6Hgv6fBJUsZQbeDtGoW1.1635148710_15_58_31.jpg
front2_0_3280271_FqiJTcu6SrX8Tt9YhqoN8tMGqolw.1635148710_15_58_31.jpg
front2_0_3280271_Folerz5wW1OrNfyCQbOlPaLXGLRw.1635148710_15_58_31.jpg
如风而过 发表于 2021-10-25 10:52
广海路北岸车站附近围屏已开始拆除,施工进入尾声

一中天桥进度如何了,一初一中学生要过马路{:62_1505:}
cpl良 发表于 2021-10-25 16:01
合江镇县域副中心规划图出来了,北化高速和玉茂一级从镇中心交汇穿过,看规划玉茂一级规划了双向六车道

这个很早就出来了,投资不多,每年投资一点,推进很慢,面向化北,规划到2035年,说实话,在城区附近的镇同庆  官桥 丽江等潜力可能比合江大多了
奋坐钰 发表于 2021-10-25 18:21
这个很早就出来了,投资不多,每年投资一点,推进很慢,面向化北,规划到2035年,说实话,在城区附近的镇 ...

化州政府网今天发出来的,可能是修改版
cpl良 发表于 2021-10-25 18:36
化州政府网今天发出来的,可能是修改版

那应该是  不久前已经出了合江发展规划
茂名高铁佬 发表于 2021-10-24 16:02
放官桥极不合理啊,过度开发,罗江有水污染的顾虑,统统放市区下面杨梅最好。……学校还是放市区好,集中 ...

对的,远离饮水源,放鉴江开发区也可以,鉴江开发区离茂近,运原材料也方便,节省运输成本。
cpl良 发表于 2021-10-25 16:01
合江镇县域副中心规划图出来了,北化高速和玉茂一级从镇中心交汇穿过,看规划玉茂一级规划了双向六车道

这个丝绸产业园,万一有印染,化学染料排到罗江就哦荷,
文阅 发表于 2021-10-25 20:30
对的,远离饮水源,放鉴江开发区也可以,鉴江开发区离茂近,运原材料也方便,节省运输成本。

如果罗江水有污染,就想办法取水口继续北移吧,反正罗江往北还很长{:62_1495:}{:62_1495:}
发表于 2021-10-25 21:04 | 显示全部楼层
文阅 发表于 2021-10-25 20:30
对的,远离饮水源,放鉴江开发区也可以,鉴江开发区离茂近,运原材料也方便,节省运输成本。

廉江“十四五”安排317 项重大项目,总投资2010.50 亿,一大批项目将开工!“

好快五颜六色果只七头又开始唱地,大哥先帮你打预防针先。
新鲜个有,华电有发电有储能两个项目,北部湾经合区2022到2030年投300亿基建。
车得一百几十页都不如大哥一个项目,痴乡喝拉。@文阅 @风继续 @真男人 @Fachau @茂名高铁佬 @杨梅有缘人 @娃啥啥 @香辣水煮鱼 @Aillllle @cpl良 @农村富哥 @hebooy 我个化化儿百年都矛见过二千亿个



1.jpg 2.jpg 3.jpg 4.jpg 5.jpg 6.jpg
官桥也搞航空城?{:62_1498:}
front2_0_3278367_Fk6j7dxqoiNxpHV5xHq0tj73pcvc.1635167197_21_06_38.jpg
发表于 2021-10-25 21:22 | 显示全部楼层

航空种甘子摸?


3.jpg
zbj988 发表于 2021-10-25 21:04
廉江“十四五”安排317 项重大项目,总投资2010.50 亿,一大批项目将开工!“

好快五颜六色果只七头又 ...

朕收到了,退下吧{:62_1507:}

空港经济区范围很大的
zbj988 发表于 2021-10-25 21:04
廉江“十四五”安排317 项重大项目,总投资2010.50 亿,一大批项目将开工!“

好快五颜六色果只七头又 ...

是不是又一届坐天井了,有多少入别人袋子里的。吹吹,有几届被捉了,看来廉江养水鱼的
您需要登录后才可以回帖 登录 | 注册帐号

本版积分规则

友情链接:
返回顶部
返回列表 快速回复