QQ登录

只需一步,快速开始

微信登录,快人一步

扫码登录更安全

登录 | 注册帐号 | 找回密码

茂名论坛

  • 关注抖音号
  • 关注公众号
  • 下载APP
  • 扫码关注抖音号
  • 扫码关注公众号
  • 扫码关注APP
快捷导航
楼主: Fachau

[今日关注] 更好的化州,25.11化州城建分享交流贴

[复制链接]
橘乡大道
20251110234104front2_0_1590349_Fg1G-7dBQ8zQ1xPsHb6dUTecxD74.jpg
20251110234104front2_0_1590349_FpR88GnzJAdUJ7pOvYKwuOnRvr94.jpg
 楼主| 发表于 2025-11-11 18:33 | 显示全部楼层 |来自:茂名在线苹果版茂名在线APP
杨梅西路出公示牌
(图片转自左下角账号)
20251111183219front1_0_3275880_FjXxGKmIXxl-saKW1LlZsA6b7STJ.jpg
 楼主| 发表于 2025-11-11 18:34 | 显示全部楼层 |来自:茂名在线苹果版茂名在线APP
杨梅空港工业园区路网建设现场
20251111183354front1_0_3275880_Ful3hlBFvRILHKG66zKiMOXWOzSM.jpg
 楼主| 发表于 2025-11-11 18:36 | 显示全部楼层 |来自:茂名在线苹果版茂名在线APP
杨梅空港工业园区路网建设现场
20251111183625front1_0_3275880_FoGy57LCtnTiFUygnBPMCIEK_aXm.jpg
 楼主| 发表于 2025-11-11 18:37 | 显示全部楼层 |来自:茂名在线苹果版茂名在线APP
yffhg6 发表于 2025-11-4 21:03
廉江佬投资的厂,主要生产电水壶,扬梅那个分厂

[qf_video w=720 h=1280 poster=https://pic-app.gdmm.c ...

不错,欢迎更多公司投资化州
 楼主| 发表于 2025-11-11 18:44 | 显示全部楼层 |来自:茂名在线苹果版茂名在线APP
不要见怪 发表于 2025-11-5 09:29
2018年 夜空中再亮的光

太离谱了。
 楼主| 发表于 2025-11-11 18:47 | 显示全部楼层 |来自:茂名在线苹果版茂名在线APP
飞奔的蚂蚁 发表于 2025-11-5 13:16
两个白坟岭,本身就是橘州新城绿景项目山岭的坟山迁移过去的。也怪化州规划没长远眼光,没考虑长远会发展 ...

雄大建设的时候就听闻过207升级和改线了
 楼主| 发表于 2025-11-11 18:48 | 显示全部楼层 |来自:茂名在线苹果版茂名在线APP
爱国爱党 发表于 2025-11-5 19:53
23亿的化州养老院项目

不会又是一个饼吧
 楼主| 发表于 2025-11-11 18:50 | 显示全部楼层 |来自:茂名在线苹果版茂名在线APP
粤西情怀 发表于 2025-11-5 21:39
莲花灯光线太暗了!还是用回以前的路灯吧!

中间用以前的路灯,两边装这个造型路灯才好看,现在都是看车灯照明
 楼主| 发表于 2025-11-11 19:07 | 显示全部楼层 |来自:茂名在线苹果版茂名在线APP

辛苦楼主了
 楼主| 发表于 2025-11-11 19:08 | 显示全部楼层 |来自:茂名在线苹果版茂名在线APP
如风而过 发表于 2025-11-10 23:40
施工机械不多,但总算稳步推进

那些年玉化一级那种大建设的场面不知道什么时候才能看到了
 楼主| 发表于 2025-11-11 19:09 | 显示全部楼层 |来自:茂名在线苹果版茂名在线APP
如风而过 发表于 2025-11-10 23:39
橘乡大道,排水沟已部分做好

看来之前传的配套工程不包括加车道了
 楼主| 发表于 2025-11-11 19:10 | 显示全部楼层 |来自:茂名在线苹果版茂名在线APP
如风而过 发表于 2025-11-10 23:38
补发前两天拍的照片,奥体文化中心清表

希望能尽快出效果图和开工仪式
发表于 2025-11-12 15:17 | 显示全部楼层
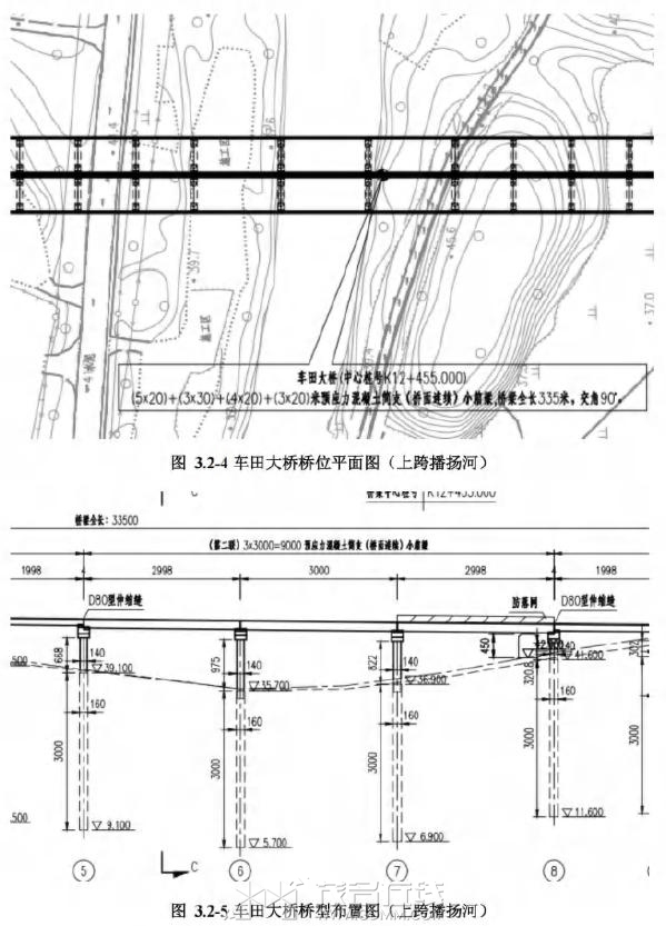
接上月贴:
化北高速跨越化州四大河流:播扬河、东江河、平定水、中垌水桥梁


ScreenShot_2025-11-12_150709_889.jpg

ScreenShot_2025-11-12_150746_569.jpg

ScreenShot_2025-11-12_151331_630.jpg


ScreenShot_2025-11-12_151657_396.jpg







发表于 2025-11-12 15:20 | 显示全部楼层
ScreenShot_2025-11-12_150804_457.jpg

ScreenShot_2025-11-12_150822_041.jpg


ScreenShot_2025-11-12_150846_150.jpg


ScreenShot_2025-11-12_151858_204.jpg


ScreenShot_2025-11-12_151928_769.jpg







您需要登录后才可以回帖 登录 | 注册帐号

本版积分规则

友情链接:
返回顶部
返回列表 快速回复