QQ登录

只需一步,快速开始

微信登录,快人一步

扫码登录更安全

登录 | 注册帐号 | 找回密码

茂名论坛

  • 关注抖音号
  • 关注公众号
  • 下载APP
  • 扫码关注抖音号
  • 扫码关注公众号
  • 扫码关注APP
快捷导航

[民生百态] 农村自建房怎样做好呢?

[复制链接]
 楼主| 发表于 2025-10-26 14:16 | 显示全部楼层 |来自:茂名在线安卓版茂名在线APP
只是占地面积120方,2楼系都飘阳台的
 楼主| 发表于 2025-10-26 16:00 | 显示全部楼层 |来自:茂名在线安卓版茂名在线APP
一只大西瓜 发表于 2025-10-26 13:21
可起三层半,个人也建议。

但不能说青龙,靠山。

我这里四周围都是山的,田地也少人种了,只是晚稻一部分种,早稻田都没有人中了
20251026155357front2_0_3337316_FtyYUW7IXeMNBLQ9T-7fAHd9H4Wl.jpg
20251026155357front2_0_3337316_FtxspJ2-KpMxUS-t1LpoCqoQ5DFT.jpg
 楼主| 发表于 2025-10-26 16:30 | 显示全部楼层 |来自:茂名在线安卓版茂名在线APP
高州妙方凉茶店 发表于 2025-10-25 16:26
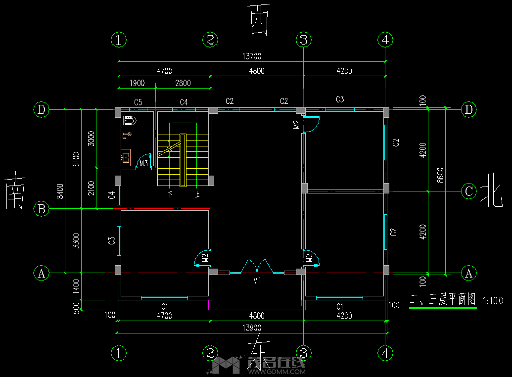
我建房的设计师傅,今天有空帮我设计了个1楼的草图,要请风水先生过来看一下

只是占地面积120方,2楼系都飘阳台的
,13.9全飘,还是飘阳台+东南角有一个房都飘来建房,还没有决定
发表于 2025-10-26 16:57 | 显示全部楼层
高州妙方凉茶店 发表于 2025-10-25 16:26
我建房的设计师傅,今天有空帮我设计了个1楼的草图,要请风水先生过来看一下

中间两条柱子我建议你加大一点,但你楼梯间踏步台起步旁边这条柱子有点麻烦,宽度不到300的柱子不是承重柱,希望你不要为了美观而忽视房屋的结构安全。
发表于 2025-10-26 17:16 | 显示全部楼层
高州妙方凉茶店 发表于 2025-10-26 16:00
我这里四周围都是山的,田地也少人种了,只是晚稻一部分种,早稻田都没有人中了

珠玛拉雅峰更高。

山长水远,靠个毛。

你问下人吧,厕所放西南,是不是断金。

除非你八字有问题,需要放西南;

前题你要清楚知道时辰,才能凭八字合;

要不,三缺一,合个毛八字。
 楼主| 发表于 2025-10-26 21:38 | 显示全部楼层 |来自:茂名在线安卓版茂名在线APP
粤西情怀 发表于 2025-10-26 16:57
中间两条柱子我建议你加大一点,但你楼梯间踏步台起步旁边这条柱子有点麻烦,宽度不到300的柱子不是承重 ...

很好的建议!
 楼主| 发表于 2025-10-26 21:43 | 显示全部楼层 |来自:茂名在线安卓版茂名在线APP
一只大西瓜 发表于 2025-10-25 23:43
楼梯左右换,厕所偏中,

神案仅要不是背靠厕所即可。

如果准建证到手后,我会再请风水师过来计划一下,认真听取你的意见,厕所卫生间的布局,你能画一张草图吗?
发表于 2025-10-27 16:35 | 显示全部楼层

房屋的柱子布置很关键,不然,到二、三层房间和阳台要外扩时,柱子在房间里面凸出来部分会成为障碍。我建议柱子可以南边、北边的柱子外移10公分,里面的柱子尽量往厅里面移,减少房间的柱子。下午花了点时间帮你制作了房屋的三维图,阳台位简单制作,复杂的要花很多时间,你参考一下怎样改进才好看。
微信图片_20251027162212.png
微信图片_20251027162219.png
微信图片_20251027162235.png

一层梁布置

一层梁布置

二、三层梁布置

二、三层梁布置
360截图20251027160919.png
360截图20251027161013.png
360截图20251027162020.png
 楼主| 发表于 2025-10-27 18:07 | 显示全部楼层 |来自:茂名在线安卓版茂名在线APP
粤西情怀 发表于 2025-10-27 16:35
房屋的柱子布置很关键,不然,到二、三层房间和阳台要外扩时,柱子在房间里面凸出来部分会成为障碍。我建 ...

大恩不言谢,如果准建证到手后,我会再请风水师过来计划一下,估计这个星期能办下来了,能加你的微信吧
发表于 2025-10-27 21:57 | 显示全部楼层
高州妙方凉茶店 发表于 2025-10-26 08:43
我原来的房子是向东的,和我弟弟的房子差不多拼排列队,大约距离墙边大约4至5米

你弟房,都比较正东,你为啥不取正东?

非要偏北?

师傅不是按磁场定位的?

而是按日出定位的?

按日出+碰场定位,

要合八字,你提供时辰八字了吗?

三缺一,可不行。

秋季后,日出偏北。
发表于 2025-10-27 21:58 | 显示全部楼层
还有,时辰是从晚上十一点开始为子时的,昨晚刚碰个老板,以为是从0点开始的。
高州妙方凉茶店 发表于 2025-10-27 18:07
大恩不言谢,如果准建证到手后,我会再请风水师过来计划一下,估计这个星期能办下来了,能加你的微信吧

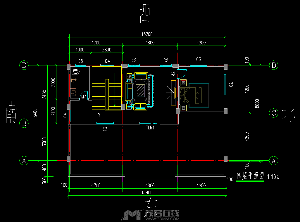
呵呵!言重了!我只是根据你们的意思,帮你画下图纸,让你能有更加直观形象的视觉,感觉到那里有不足的地方,可以进一步修改。你有什么想法可以提出来,大家讨论一下。比如我画的第四层房间有个凹位,那里的一截墙可能往外面移出来做平整。
 楼主| 发表于 2025-10-28 10:30 | 显示全部楼层 |来自:茂名在线安卓版茂名在线APP
粤西情怀 发表于 2025-10-27 22:55
呵呵!言重了!我只是根据你们的意思,帮你画下图纸,让你能有更加直观形象的视觉,感觉到那里有不足的地 ...

如果准建证到手后,我会再请风水师过来规划布局一下,准建证估计这个星期能办下来,谢谢!
 楼主| 发表于 2025-10-28 10:39 | 显示全部楼层 |来自:茂名在线安卓版茂名在线APP
一只大西瓜 发表于 2025-10-27 21:57
你弟房,都比较正东,你为啥不取正东?

非要偏北?

大门口有山挡着了,大约距离50米,所以扭一扭,避开那座小山
 楼主| 发表于 2025-10-28 10:53 | 显示全部楼层 |来自:茂名在线安卓版茂名在线APP
一只大西瓜 发表于 2025-10-25 23:43
楼梯左右换,厕所偏中,

神案仅要不是背靠厕所即可。


20251028105307front2_0_3337316_Fg9E2qlH0NtPZA3qn4gbxT78qOch.jpg
您需要登录后才可以回帖 登录 | 注册帐号

本版积分规则

友情链接:
返回顶部
返回列表 快速回复