QQ登录

只需一步,快速开始

微信登录,快人一步

扫码登录更安全

登录 | 注册帐号 | 找回密码

茂名论坛

  • 关注抖音号
  • 关注公众号
  • 下载APP
  • 扫码关注抖音号
  • 扫码关注公众号
  • 扫码关注APP
快捷导航

[民生百态] 农村自建房怎样做好呢?

[复制链接]
如果我建房,会第一步找风水师傅,根据那块地的方位,确定厕所,鞋架,楼梯等在哪个位置,每块地都有三个吉位,三个凶位,尽量避免厕所建在吉位,宜建在凶位进行压制,再进行布局设计
发表于 2025-10-22 13:46 | 显示全部楼层
1354233 发表于 2025-10-22 00:49
如果我建房,会第一步找风水师傅,根据那块地的方位,确定厕所,鞋架,楼梯等在哪个位置,每块地都有三个吉 ...

凶位无非是北,东,防台风雨,

吉位无非是东,南,

不吉不凶,西。

风水风水,就是台风暴雨。。。

进门,啥吉位,财位,也是一样的。

风水师也是按传统的风水来说的,

不过,传统的风水师比不过乱吹的风水师赚得多。

真按传统来搞,很累的,没法让几个人满意。

会吹的,能让人人满意。
 楼主| 发表于 2025-10-22 14:10 | 显示全部楼层 |来自:茂名在线安卓版茂名在线APP
1354233 发表于 2025-10-22 00:49
如果我建房,会第一步找风水师傅,根据那块地的方位,确定厕所,鞋架,楼梯等在哪个位置,每块地都有三个吉 ...

我已经先后找了5位日子风水师傅看过,每个人说法都有不同之处
发表于 2025-10-22 15:21 | 显示全部楼层
高州妙方凉茶店 发表于 2025-10-22 14:10
我已经先后找了5位日子风水师傅看过,每个人说法都有不同之处

抓到本质,

一叶知秋,

抓不到本质,

一叶障目。
 楼主| 发表于 2025-10-22 18:15 | 显示全部楼层 |来自:茂名在线安卓版茂名在线APP
一只大西瓜 发表于 2025-10-22 15:21
抓到本质,

一叶知秋,

很纠结怎样布局
20251022181511front2_0_3337316_Fn-RhamgvBZYvJabcISV2od08iUo.jpg
高州妙方凉茶店 发表于 2025-10-22 14:10
我已经先后找了5位日子风水师傅看过,每个人说法都有不同之处

和日子无关的,是方位方面的风水先生,其实不难的,测准屋向,厕所等位置自然就出来了。
一只大西瓜 发表于 2025-10-22 13:46
凶位无非是北,东,防台风雨,

吉位无非是东,南,

不是防台风,防台风冇那么难,主要看选材和当时施工师傅能力。
发表于 2025-10-22 21:25 | 显示全部楼层
1354233 发表于 2025-10-22 20:02
和日子无关的,是方位方面的风水先生,其实不难的,测准屋向,厕所等位置自然就出来了。

一个字,就是吹;


如果真要讲传统风水,你的大门分分钟要面向隔壁的侧墙,离隔壁的侧墙距离是房与房之间的1米。


发表于 2025-10-22 21:29 | 显示全部楼层

多去看看大老板的刚入伙的和旧的,像你这种房多房小卫生间小厅大的自建房吧;


好的布局与差的布局,差不了钱;

好的工程师傅与差的师傅,也差不了钱;

但以后住的心情与舒适,差看远。

老实说,都不知,你要那么多房干啥?

四代同堂,和儿孙满堂了?
发表于 2025-10-22 21:31 | 显示全部楼层

这个死角多,要慎。
发表于 2025-10-22 21:32 | 显示全部楼层

楼梯与卫生间前的地方,又消费了。
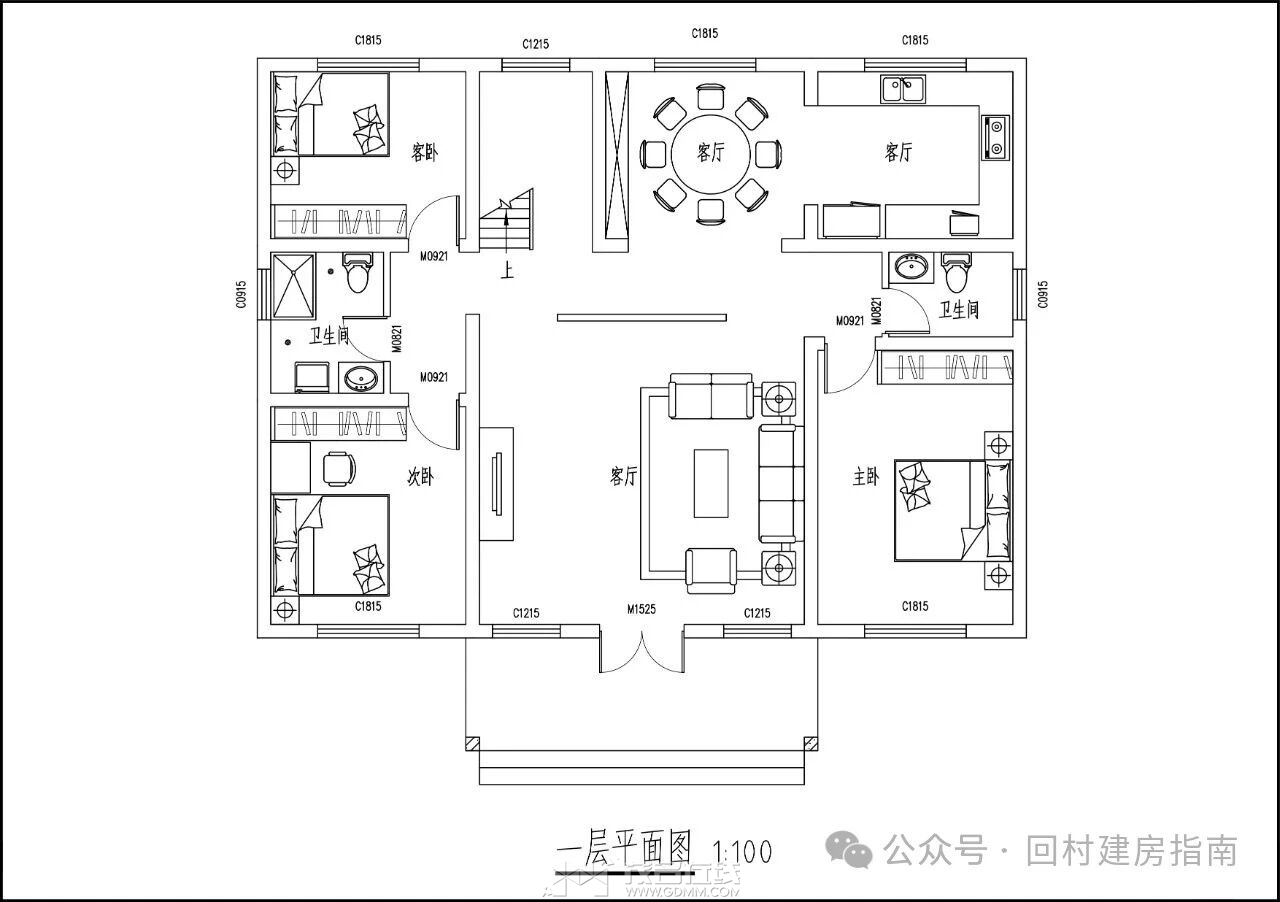
发表于 2025-10-23 11:08 | 显示全部楼层

你可以参考一下这份图纸的布局,把进深调小一些就行。
1.jpg
2.jpg
发表于 2025-10-23 11:48 | 显示全部楼层

西瓜兄弟说房屋柱、梁要对齐整,柱、梁如果全部对得齐齐整整,房屋的布局就失去很多灵活性。这份旧图修改了一下,你也可以参考一下。
360截图20251023113826.png
360截图20251023114107.png
发表于 2025-10-23 15:02 | 显示全部楼层
粤西情怀 发表于 2025-10-23 11:48
西瓜兄弟说房屋柱、梁要对齐整,柱、梁如果全部对得齐齐整整,房屋的布局就失去很多灵活性。这份旧图修改 ...

630C0E5D-8392-48D2-A009-9924866CC74D.jpeg

发表于 2025-10-23 15:07 | 显示全部楼层
粤西情怀 发表于 2025-10-23 11:48
西瓜兄弟说房屋柱、梁要对齐整,柱、梁如果全部对得齐齐整整,房屋的布局就失去很多灵活性。这份旧图修改 ...

影视影音厅(饮茶吹水)不需太大,太大会影响:

1,影音效果。(除非你推大设备)

2,饮茶人与人之间距离远,不利于突破对方的防线。
您需要登录后才可以回帖 登录 | 注册帐号

本版积分规则

友情链接:
返回顶部
返回列表 快速回复