QQ登录

只需一步,快速开始

微信登录,快人一步

扫码登录更安全

登录 | 注册帐号 | 找回密码

茂名论坛

  • 关注抖音号
  • 关注公众号
  • 下载APP
  • 扫码关注抖音号
  • 扫码关注公众号
  • 扫码关注APP
快捷导航

[民生百态] 农村自建房怎样做好呢?

[复制链接]
发表于 2025-10-23 15:43 | 显示全部楼层
楼主上剪力墙了,要么做堡垒,要么上框架,尽量不要剪力墙+砖混。

楼板边墙角可能会很容易开裂的。

横向结构难平行。

用泡沫砖,差不了几个钱,又能防开裂,隔音,少人工材料费,最主要是防碱化。
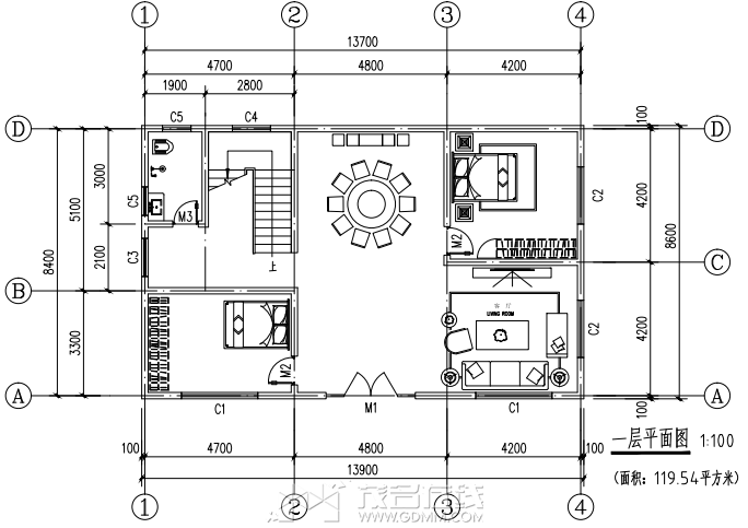
 楼主| 发表于 2025-10-23 15:44 | 显示全部楼层 |来自:茂名在线安卓版茂名在线APP
粤西情怀 发表于 2025-10-23 11:48
西瓜兄弟说房屋柱、梁要对齐整,柱、梁如果全部对得齐齐整整,房屋的布局就失去很多灵活性。这份旧图修改 ...

卫生间楼梯固定在那个角不能变动,其他还可以,卫星定位在13.9X8.6米范围内
20251023154423front2_0_3337316_Fn-RhamgvBZYvJabcISV2od08iUo.jpg
20251023154422front2_0_3337316_FldKOirAGoRGFjZHQUQLj26UkFfj.jpg
20251023154422front2_0_3337316_FqjMKBkVkicK7K_0LpvMeEF7hOxe.jpg
发表于 2025-10-23 16:04 | 显示全部楼层
一只大西瓜 发表于 2025-10-18 12:21
!少了套间,上套间吧,不仅爽,还稳。

还有一二是复式,三四楼的我不上啊!
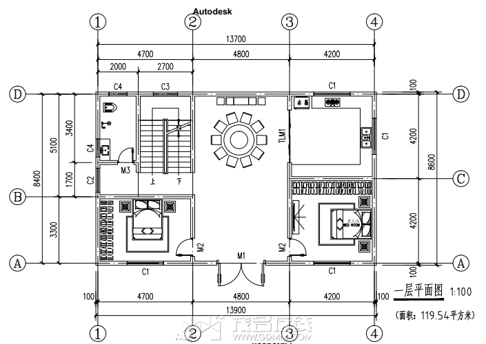
发表于 2025-10-23 17:00 | 显示全部楼层

按你的意思帮你画 一下这张图纸,你比对一下合不合适,后期怎样改进,你再想一下,好事多磨。
360截图20251023165822.png
发表于 2025-10-23 17:55 | 显示全部楼层
高州007 发表于 2025-10-23 16:04
还有一二是复式,三四楼的我不上啊!

还是你最后方案,右上角做大厨房,左下角做影音茶厅吹水。

中间摆神案,麻雀台和饭桌。

现代元素,都有了。
 楼主| 发表于 2025-10-23 18:55 | 显示全部楼层 |来自:茂名在线安卓版茂名在线APP
中长13米八
 楼主| 发表于 2025-10-23 19:15 | 显示全部楼层 |来自:茂名在线安卓版茂名在线APP
粤西情怀 发表于 2025-10-23 17:00
按你的意思帮你画 一下这张图纸,你比对一下合不合适,后期怎样改进,你再想一下,好事多磨。

长度13.9米,宽8.6米,高3.6米吧,每个床头位置向帖厅墙壁吧,前面东北角那间房做餐厅,另外别的地方做柴火厨房,4页大门2.8米或者2.6米吧,大门向内,还要做楼梯门,楼梯宽度2.8米吧
 楼主| 发表于 2025-10-23 19:19 | 显示全部楼层 |来自:茂名在线安卓版茂名在线APP
粤西情怀 发表于 2025-10-23 17:00
按你的意思帮你画 一下这张图纸,你比对一下合不合适,后期怎样改进,你再想一下,好事多磨。


20251023191909front2_0_3337316_Fgnezzt6sNOwM3_JGRj2jDZza3ly.jpg
20251023191909front2_0_3337316_FmUmyFP1q26JieCD-aZLAt7ftFFA.jpg
20251023191909front2_0_3337316_Fo6Q1DKqJxkob7a4-jbedqE15IH_.jpg
发表于 2025-10-24 09:56 | 显示全部楼层
一只大西瓜 发表于 2025-10-23 15:43
楼主上剪力墙了,要么做堡垒,要么上框架,尽量不要剪力墙+砖混。

楼板边墙角可能会很容易开裂的。

全红禅在湛江老家的新屋也是采用全剪力墙的做法,这个对工程队的要求很高,要请有实力的工程队才能胜任。
发表于 2025-10-24 10:58 | 显示全部楼层
高州妙方凉茶店 发表于 2025-10-23 19:15
长度13.9米,宽8.6米,高3.6米吧,每个床头位置向帖厅墙壁吧,前面东北角那间房做餐厅,另外别的地方做柴 ...

房间的床头都贴中厅墙壁不怎么理想吧!东北角的房间改做餐厅的话,客厅不好布置的,还是把客厅布置在东北角,把餐厅放在中厅靠神台上面好点。
360截图20251024105330.png
发表于 2025-10-24 12:35 | 显示全部楼层
粤西情怀 发表于 2025-10-24 10:58
房间的床头都贴中厅墙壁不怎么理想吧!东北角的房间改做餐厅的话,客厅不好布置的,还是把客厅布置在东北 ...

中堂墙放神案,太师椅,两边放中式茶几木椅(风水)。

过年、喜庆,生辰,两老坐太师椅收红包。

再往下,放麻雀台,再下,饭桌。

左下角与右下角拿一个做大厨房,

个人建议放右边,再给右上角配个洗手间。
发表于 2025-10-24 12:46 | 显示全部楼层
粤西情怀 发表于 2025-10-24 10:58
房间的床头都贴中厅墙壁不怎么理想吧!东北角的房间改做餐厅的话,客厅不好布置的,还是把客厅布置在东北 ...

厕所做长点,与楼梯平,甚至到下面墙,好看,少死角积尘。

可开两门,厕所,洗漱洗衣间分离。
发表于 2025-10-24 12:58 | 显示全部楼层
本帖最后由 一只大西瓜 于 2025-10-24 13:27 编辑
粤西情怀 发表于 2025-10-24 10:58
房间的床头都贴中厅墙壁不怎么理想吧!东北角的房间改做餐厅的话,客厅不好布置的,还是把客厅布置在东北 ...

中横梁,
要么与楼梯平(常规做法),


要么与左下角中墙平,如果右下角设厅,有横梁,难看。

右边,给右上角房,设个大套间。右下边,做大厨房。

发表于 2025-10-24 13:04 | 显示全部楼层
楼主纠结原因:

1,通风采光(设计师);

2,风水(真风水师);

3,要房多(个人);

三样,可以内卷了。
发表于 2025-10-24 13:05 | 显示全部楼层
楼主卷,让很多准备自卷的,学到很多东西。
您需要登录后才可以回帖 登录 | 注册帐号

本版积分规则

友情链接:
返回顶部
返回列表 快速回复