QQ登录

只需一步,快速开始

微信登录,快人一步

扫码登录更安全

登录 | 注册帐号 | 找回密码

茂名论坛

  • 关注抖音号
  • 关注公众号
  • 下载APP
  • 扫码关注抖音号
  • 扫码关注公众号
  • 扫码关注APP
快捷导航

[民生百态] 农村自建房怎样做好呢?

[复制链接]
发表于 2025-10-17 22:35 | 显示全部楼层
好的设计,要上门看情况的。

主要看你东南西北有没有遮档物,

涉及取光、通风,与防台风雨。。。

统称:风水。
 楼主| 发表于 2025-10-17 23:24 | 显示全部楼层 |来自:茂名在线安卓版茂名在线APP
粤西情怀 发表于 2025-10-17 22:19
建筑设计只是我的业余爱好而已!曾经也喜欢到一些自建房论坛看别人发的自建房帖子,看别人建房的经过和当 ...

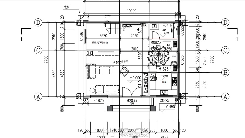
真的非常感谢大神老网友建议,在大厅督做楼梯间你有什么不同的个人看法吗?你认为120方的楼房,那种设计比较好?可以分享一下吗?
 楼主| 发表于 2025-10-18 08:40 | 显示全部楼层 |来自:茂名在线安卓版茂名在线APP
粤西情怀 发表于 2025-10-17 22:19
建筑设计只是我的业余爱好而已!曾经也喜欢到一些自建房论坛看别人发的自建房帖子,看别人建房的经过和当 ...

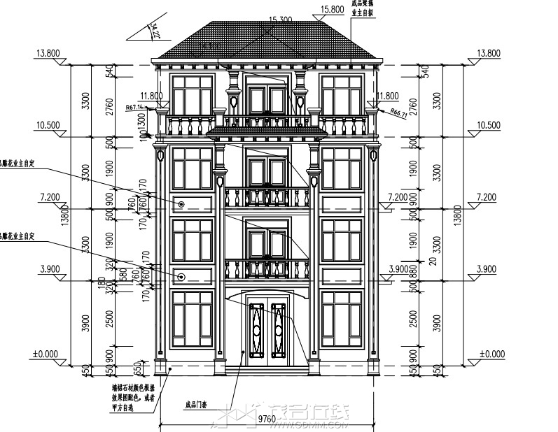
现在农村建房一般首层有多高呢?2层3层有多高呢?
 楼主| 发表于 2025-10-18 08:54 | 显示全部楼层 |来自:茂名在线安卓版茂名在线APP
二楼三楼起,每个房间建2个窗户,1个1.8米的飘窗,1个1.2米的普通窗户,那样你觉得好吗?多一个窗,床位难找位置吧?但是我又直觉得2个窗户好
高州妙方凉茶店 发表于 2025-10-18 08:40
现在农村建房一般首层有多高呢?2层3层有多高呢?

首层3.9或者3.6米吧,二、三层3.3米比较适合。
这户型类型以前房子的户型

高州妙方凉茶店 发表于 2025-10-17 23:24
真的非常感谢大神老网友建议,在大厅督做楼梯间你有什么不同的个人看法吗?你认为120方的楼房,那种设计 ...

我也看过一些图纸是大厅督做楼梯间的;有电梯和楼梯间都在后面的,楼梯间围着电梯井走三跑;也有一楼大厅做旋转楼梯到二楼,二楼楼梯设置在房屋中间背后的,这些要根据户型情况设计。你家这种开间宽,进深窄的户型不好设计。
发表于 2025-10-18 10:12 | 显示全部楼层
WeChatfaed54089afef3033004bad2800f421f.jpg
发表于 2025-10-18 10:16 | 显示全部楼层
我找人设计的。。。。
WeChat050e1e59de9ea74becf81719442622b9.jpg
发表于 2025-10-18 10:28 | 显示全部楼层
没人知道楼主前后左右啥情况,给你设计的,都是。。。
 楼主| 发表于 2025-10-18 10:53 | 显示全部楼层 |来自:茂名在线安卓版茂名在线APP
粤西情怀 发表于 2025-10-18 09:53
我也看过一些图纸是大厅督做楼梯间的;有电梯和楼梯间都在后面的,楼梯间围着电梯井走三跑;也有一楼大厅 ...

二楼三楼起,每个房间建2个窗户,1个1.8米的飘窗,1个1.2米的普通窗户,那样你觉得好吗?多一个窗,床位难找位置吧?但是我又直觉得2个窗户好
高州妙方凉茶店 发表于 2025-10-18 08:54
二楼三楼起,每个房间建2个窗户,1个1.8米的飘窗,1个1.2米的普通窗户,那样你觉得好吗?多一个窗,床位难 ...

窗户的设计可要根据你房间的形状和摆放床位的位置来确定,你叫别人设计的户型,设置两个窗户后,床位放置有点尴尬呀!
 楼主| 发表于 2025-10-18 11:59 | 显示全部楼层 |来自:茂名在线安卓版茂名在线APP
一只大西瓜 发表于 2025-10-17 22:28
楼梯放中堂,设计佬与你有仇?

这个主要是大厅宽五点二米,步梯长度也刚好5.2米刚好同步, 隔一面实心墙也好分担实力面积,如果不做感觉厅长了,如果做在别的地方,感觉楼梯间,卫生间都不协调,你的建议是那怎样做的好呢?
发表于 2025-10-18 12:12 | 显示全部楼层

这个合理点,根据方位。左右调整下即可。
发表于 2025-10-18 12:18 | 显示全部楼层
高州妙方凉茶店 发表于 2025-10-18 11:59
这个主要是大厅宽五点二米,步梯长度也刚好5.2米刚好同步, 隔一面实心墙也好分担实力面积,如果不做感觉 ...

布局类似上图,中间5.2米缩小点(那左右房就大点),楼梯放左右一边。


仅要门口台阶和楼上阳台宽点,一样大气。

现在乡下人建房,还像传统跟老古董,睡得爽吗?厅大过头,想搞卫生?
您需要登录后才可以回帖 登录 | 注册帐号

本版积分规则

友情链接:
返回顶部
返回列表 快速回复